

- Possession Start DateNov'20
- StatusCompleted
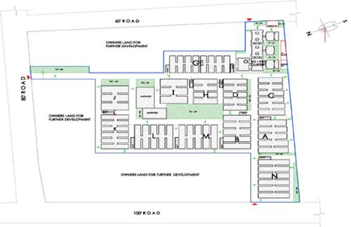
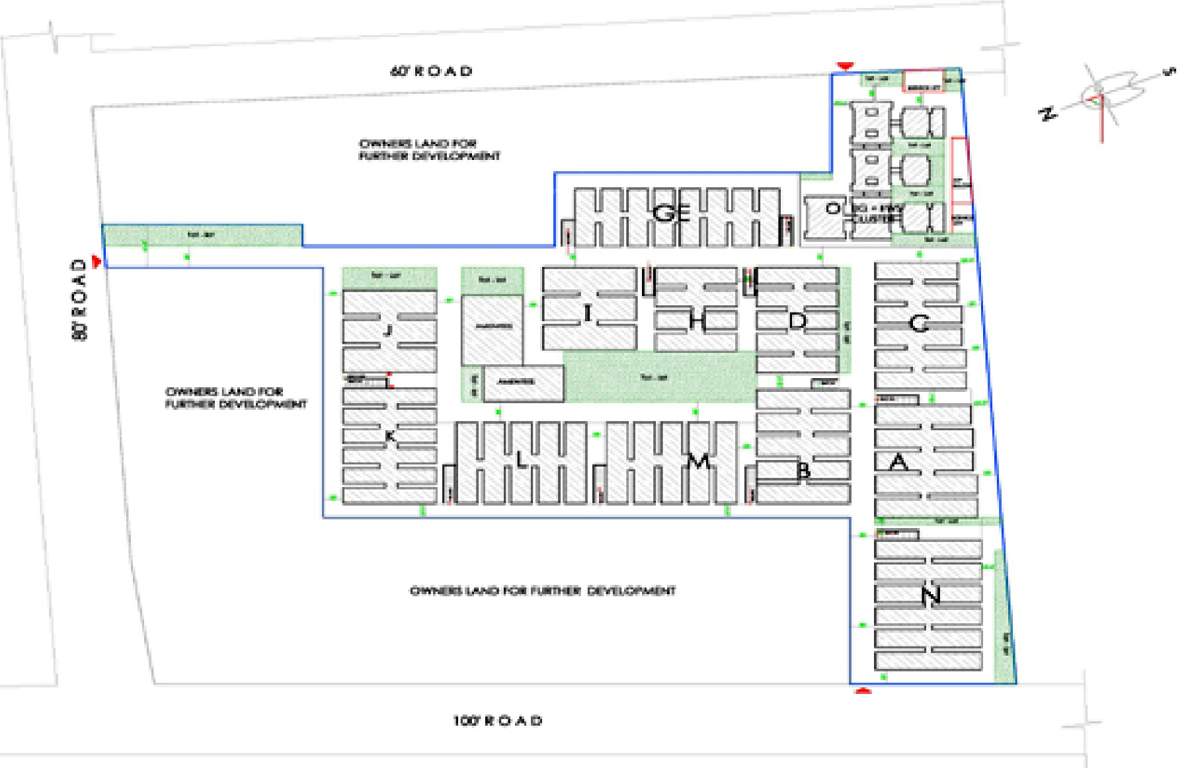
- Total Area10 Acres
- Total Launched apartments912
- Launch DateOct'14
- AvailabilityNew and Resale
Salient Features
- Schools, hospitals are situated in close vicinity
- The project offers apartment with perfect combination of contemporary architecture
- Features to provide comfortable living
- Amenities like power backup, gymnasium
More about Sagara The Address
The Sagara Durga developer is offering luxurious residential spaces in the Madhurawada region of Vishakhapatnam. The locality is well developed with all kinds of facilities available within a kilometre like hospital, banking, ATM, petrol pump, bus station, school, play school, restaurant, and train station school for higher secondary education, park, metro station etc. The project offers many amenities like gym, club house, intercom, security system, power back up and much more. The entire proje...View more
Project Specifications
- 2 BHK
- 3 BHK
- Gymnasium
- Swimming Pool
- Multipurpose Room
- Sports Facility
- Indoor Games
- ATM
- Children's play area
- Club House
- Power Backup
- Car Parking
- Lift Available
- Shopping Mall
- Spa
- Sewage Treatment Plant
- Water Purifying System
- Storm Water Management
- Internal Roads
- Banquet Hall
- Beauty Parlour And Saloon
- 24 X 7 Security
- Golf Course
- Tennis Court
- Football
- Snooker
- Landscape Garden and Tree Planting
- Energy management
- Day Care Center
- Reading Lounge
- Table Tennis
- Conference Room
- Medical Facilities
- Carrom
Sagara The Address Gallery
Payment Plans

About Sagara Durga

- Total Projects1
- Ongoing Projects0


































































