

Price on request
Builder Price
Configuration
3 BHK
Carpet Area
1,074 - 1,091 sq ft
Possession Status
Launch
Overview
- Possession Start DateDec'27
- StatusLaunch
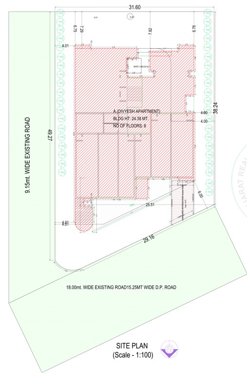
- Total Area0.3561 Acres
- Launch DateAug'24
- AvailabilityNew
- RERA IDPR/GJ/VALSAD/VALSAD/Valsad Municipality/MAA14309/211024/311227
More about Om Shree Divyesh Apartment
It offers 3 BHK Apartment in Valsad Central. The project is Launch project and possession in Dec 27. Among the many luxurious amenities that the project boasts are Letter Box, Fire Fighting System, Street Lighting, Energy management, Internal Roads & Footpaths etc.
Project Specifications
Flooring
Living/Dining:
Vitrified Tiles
Toilets:
Vitrified Tiles
Other Bedroom:
Good Quality Vitrified Flooring
Master Bedroom:
Good Quality Vitrified Flooring
Kitchen:
Granite cooking platform with SS sink in kitchen
Walls
Interior:
Smooth Finish with Luppam Altek or Equivalent Two Coats of Acrylic Emulsion Paint
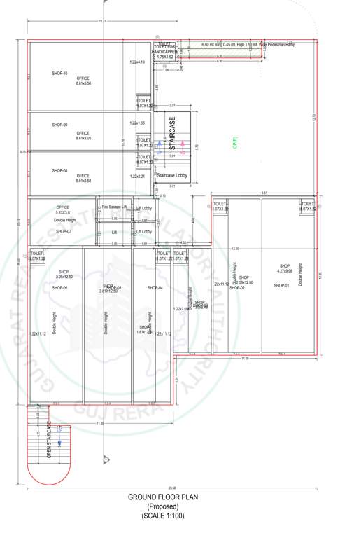
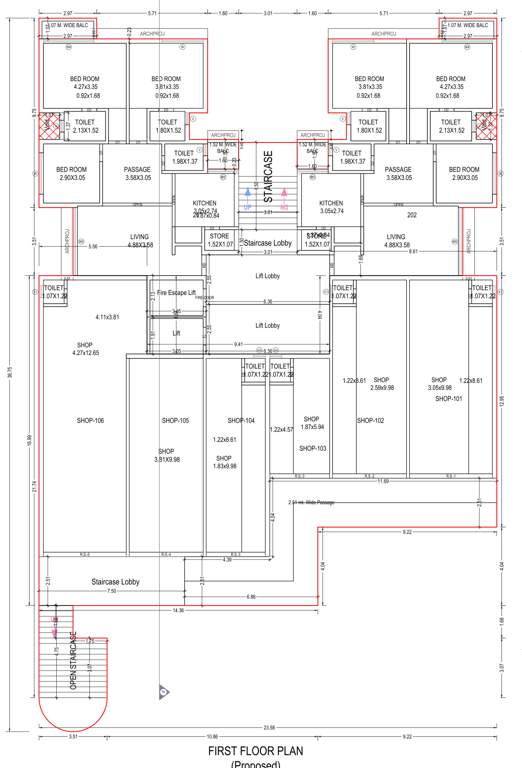
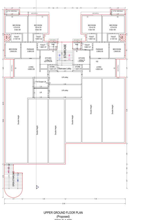
Om Shree Divyesh Apartment Floor Plans
- 3 BHK
-
Om Shree Divyesh Apartment Amenities
- 24X7 Water Supply
- 24 X 7 Security
- Fire Fighting System
- Internal Roads & Footpaths
- Sewage Treatment Plant
- Letter Box
- Electrical meter Room
- Energy management
- Landscape Garden and Tree Planting
- Storm Water Drains
- Street Lighting
- Water Conservation, Rain water Harvesting
Om Shree Divyesh Apartment Gallery
About Om Infracon
- Total Projects2
- Ongoing Projects1























