

Price on request
Builder Price
Configuration
3 BHK
Carpet Area
880 - 1,264 sq ft
Possession Status
Launch
Overview
- Possession Start DateDec'26
- StatusLaunch
- Total Area0.39 Acres
- Launch DateJan'22
- AvailabilityNew
- RERA IDPR/GJ/VADODARA/VADODARA/Others/RAA10059/210422
Project Specifications
Doors
Main:
Decorative Main Door
Internal:
Flush Door
Flooring
Kitchen:
Vitrified Tiles
Living/Dining:
Vitrified Tiles
Master Bedroom:
Vitrified Tiles
Other Bedroom:
Vitrified Tiles
Toilets:
Anti Skid Tiles
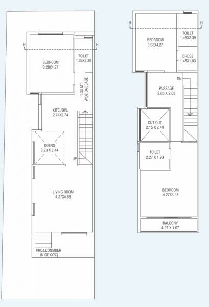
Aatmiya Blu Onyx Phase 1 Floor Plans
- 3 BHK
-
Aatmiya Blu Onyx Phase 1 Amenities
- Club House
- Children's play area
- Car Parking
- 24X7 Water Supply
- Gated Community
- 24 X 7 Security
- CCTV
- Security Cabin
- Senior Citizen Sitout
- Landscape Garden and Tree Planting
- Water Conservation, Rain water Harvesting
Aatmiya Blu Onyx Phase 1 Gallery
About Aatmiya Group

- Total Projects25
- Ongoing Projects17






















