

- Possession Start DateFeb'10
- StatusCompleted
- Total Launched apartments5
- Launch DateMar'09
- AvailabilityResale
More about Kristal Pearl F and I
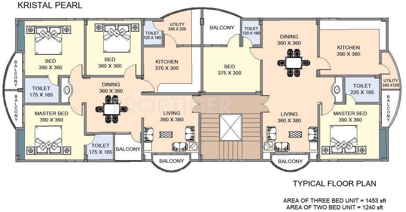
Kristal Group’s Kristal Pearl F and I in Kovalam NH bypass, Trivandrum hosts deluxe 2 and 3 BHK apartments ranging between 1240 and 1453 sq ft. Launched in April 2009, the property comprises of 5 ready apartments. Flats are available only on resale. A bunch of amenities like gymnasium, children’s play area, 24x7 security, swimming pool, garden, intercom, community hall, jogging track and maintenance staff are clubbed along with this. Kristal Group, with their 18 years of experience, ...View more
![HDFC (5244) HDFC (5244)]()
![Axis Bank Axis Bank]()
![PNB Housing PNB Housing]()
![Indiabulls Indiabulls]()
![Citibank Citibank]()
![DHFL DHFL]()
![L&T Housing (DSA_LOSOT) L&T Housing (DSA_LOSOT)]()
![IIFL IIFL]()
- + 3 more banksshow less
Project Specifications
- 2 BHK
- 3 BHK
- Gymnasium
- Swimming Pool
- Children's play area
- 24x7 Security
- Intercom
- Jogging Track
- Community Hall
- Maintenance Staff
- Rain Water Harvesting
- Landscape Garden and Tree Planting
Kristal Pearl F and I Gallery
About Kristal

- Years of experience29
- Total Projects46
- Ongoing Projects0
























