

Price on request
Builder Price
Configuration
3, 4 BHK
Carpet Area
988 - 2,115 sq ft
Possession Status
Completed
Overview
- Possession Start DateAug'24
- StatusCompleted
- Total Area1.3312 Acres
- Launch DateAug'18
- AvailabilityResale
- RERA IDPR/GJ/SURAT/SURAT CITY/Surat Municipal Corporation/RAA04319/A1R/280824/301222
Project Specifications
Flooring
Master Bedroom:
Vitrified Tiles
Other Bedroom:
Vitrified Tiles
Others
Points:
Hall
Wiring:
Concealed copper wiring
Frame Structure:
RCC framed structure
Switches:
Modular switches
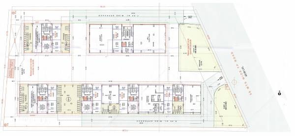
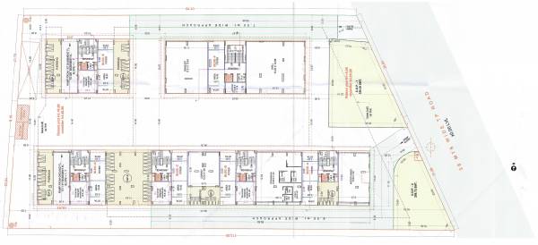
Sidharth The Majestic Floor Plans
- 3 BHK
- 4 BHK
-
-
Sidharth The Majestic Amenities
- Swimming Pool
- Closed Car Parking
- Community Hall
- 24X7 Water Supply
- 24 X 7 Security
- 24x7 CCTV Surveillance
- Fire Fighting System
- Internal Roads & Footpaths
- Lift(s)
- Sewage Treatment Plant
- Flower Garden
- Garbage Disposal
- Letter Box
- RO Water System
- Electrical meter Room
- Energy management
- Landscape Garden and Tree Planting
- Solid Waste Management And Disposal
- Storm Water Drains
- Street Lighting
- Water Conservation, Rain water Harvesting
Sidharth The Majestic Gallery
About Sidharth Homes
- Total Projects1
- Ongoing Projects0




















