

- Possession Start DateJan'13
- StatusCompleted
- Total Launched villas169
- Launch DateMar'10
- AvailabilityResale
Salient Features
- Spacious properties
- Loaded with amenities like landscaped gardens, swimming pool, olympic size swimming pool, tree plantation, cycling and jogging tracks
- Stratigically located schools, recreational, hospitals
More about BU Bhandari Chrrysalis
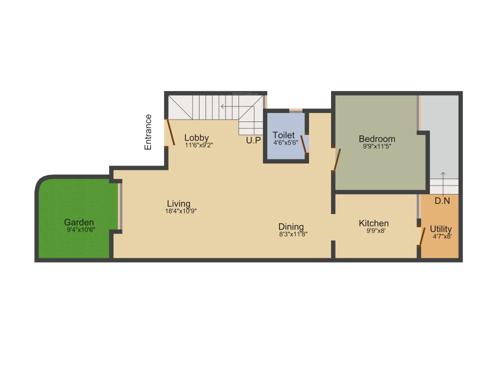
B.U.Bhandari Landmarks Chrrysalis are 3 BHK luxurious row houses in Wagholi Pune. Set amongst stunning natural splendor, Chrrysalis Villas offer the pureness, the abundance and wide open spaces right in your own home. Escape the noise and pollution and experience life to its fullest, experience the grandeur of living in a bungalow in Wagholi Pune.
![HDFC (5244) HDFC (5244)]()
![Axis Bank Axis Bank]()
![PNB Housing PNB Housing]()
![Indiabulls Indiabulls]()
![Citibank Citibank]()
![DHFL DHFL]()
![L&T Housing (DSA_LOSOT) L&T Housing (DSA_LOSOT)]()
![IIFL IIFL]()
- + 3 more banksshow less
Project Specifications
- 3 BHK
- Gymnasium
- Swimming Pool
- Children's play area
- Club House
- Toddler Pool
- Indoor Games
- Power Backup
- Rain Water Harvesting
- 24 X 7 Security
- Car Parking
- Jogging Track
- Vaastu Compliant
- Landscape Garden and Tree Planting
- Party Lawn
BU Bhandari Chrrysalis Gallery
About BU Bhandari

- Years of experience107
- Total Projects37
- Ongoing Projects8


































