

- Possession Start DateAug'10
- StatusCompleted
- Total Launched apartments8
- AvailabilityResale
More about Clover Olympus
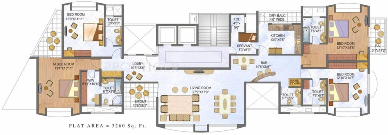
Clover Olympus is well constructed, ready to move in project, in one of the most desired residential location Sopan Baug, Pune. It offers 3 and 4 BHK apartments which have a carpet area of 2,190 - 4,025 sq. ft. The apartments are ready to move into and the apartments are available only through resale. There are a total number of 8 apartments. Several amenities are proposed for the community, including a gymnasium, rainwater harvesting, power back up, Internet connection, ample car parking space,...View more
![HDFC (5244) HDFC (5244)]()
![Axis Bank Axis Bank]()
![PNB Housing PNB Housing]()
![Indiabulls Indiabulls]()
![Citibank Citibank]()
![DHFL DHFL]()
![L&T Housing (DSA_LOSOT) L&T Housing (DSA_LOSOT)]()
![IIFL IIFL]()
- + 3 more banksshow less
Project Specifications
- 3 BHK
- 4 BHK
- Gymnasium
- Rain Water Harvesting
- Power Backup
- Internet/Wi-Fi
- Open Car Parking
- Recreation Facilities
- Fire Fighting System
- Entrance Lobby
Clover Olympus Gallery
About Clover Realty

- Years of experience53
- Total Projects28
- Ongoing Projects2














































