

- Possession Start DateAug'13
- StatusCompleted
- Total Launched villas21
- Launch DateDec'11
- AvailabilityResale
More about Shree Bal Kapil Aasmant Villas
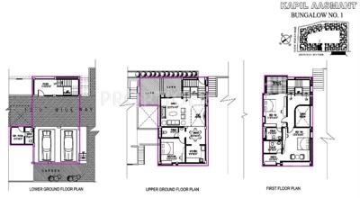
Kapil Aasmant Villas by Shree Bal Developers, located I Pashan, Pune, offers 3 and 4 BHK apartments within the price range of Rs.2.2 and 3.3 crore. There are 21 villas in total with the sizes ranging from 2990 to 4547 sq ft. It provides amenities such as gymnasium, children’s play area, club house, sports facility, rainwater harvesting, intercom, jogging track, power backup, landscaped gardens, indoor games, broadband connectivity, 24x7 security, solar water heater system and well develope...View more
![HDFC (5244) HDFC (5244)]()
![Axis Bank Axis Bank]()
![PNB Housing PNB Housing]()
![Indiabulls Indiabulls]()
![Citibank Citibank]()
![DHFL DHFL]()
![L&T Housing (DSA_LOSOT) L&T Housing (DSA_LOSOT)]()
![IIFL IIFL]()
- + 3 more banksshow less
Project Specifications
- 3 BHK
- 4 BHK
- Gymnasium
- Children's play area
- Club House
- Sports Facility
- Rain Water Harvesting
- Intercom
- 24 X 7 Security
- Jogging Track
- Power Backup
- Indoor Games
- Broadband Connectivity
- Landscape Garden and Tree Planting
- Solar Water Heating
- Manicured Garden
Shree Bal Kapil Aasmant Villas Gallery
About Shree Bal Developers

- Total Projects11
- Ongoing Projects0





































