

- Possession Start DateAug'12
- StatusCompleted
- Total Launched villas54
- Launch DateMar'11
- AvailabilityResale
Salient Features
- Luxurious properties
- Club house to impart quality lifestyle
- Accessible to schools, hospitals, banks
More about Lakhani Prives Luxury Hillside
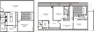
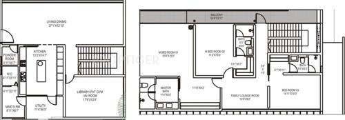
Lakhani Prives Luxury Hillside is a premium project located at Maval. This project consists of a total of 54 units and offers premium amenities to residents. The project comes with 2, 3 and 4 BHK apartments for buyers while home sizes range between 3000 and 4500 sq. ft. here. Some amenities on offer include a well equipped gymnasium, club house, playing zone for kids, swimming pool, golf course, table tennis facilities, gardens, jogging track, squash court, community space, meditation corner, bu...View more
- 2 BHK
- 3 BHK
- 4 BHK
- Gymnasium
- Swimming Pool
- Children's play area
- Club House
- Golf Course
- Squash Court
- Table Tennis
- Community Hall
- Jogging Track
- Toddler Pool
- Library
- Business Center
- Basketball Court
- Landscape Garden and Tree Planting
- Yoga/Meditation Area
- Medical Facilities
Lakhani Prives Luxury Hillside Gallery

About Lakhani Builders Pvt Ltd

- Years of experience38
- Total Projects29
- Ongoing Projects10



























