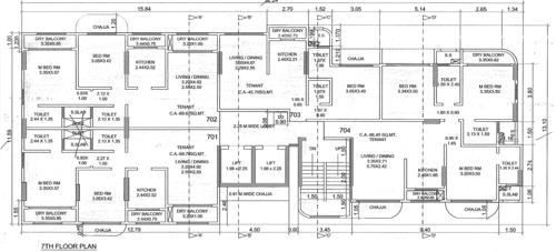
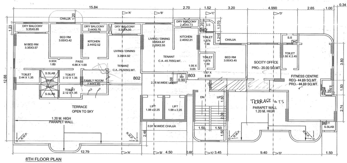
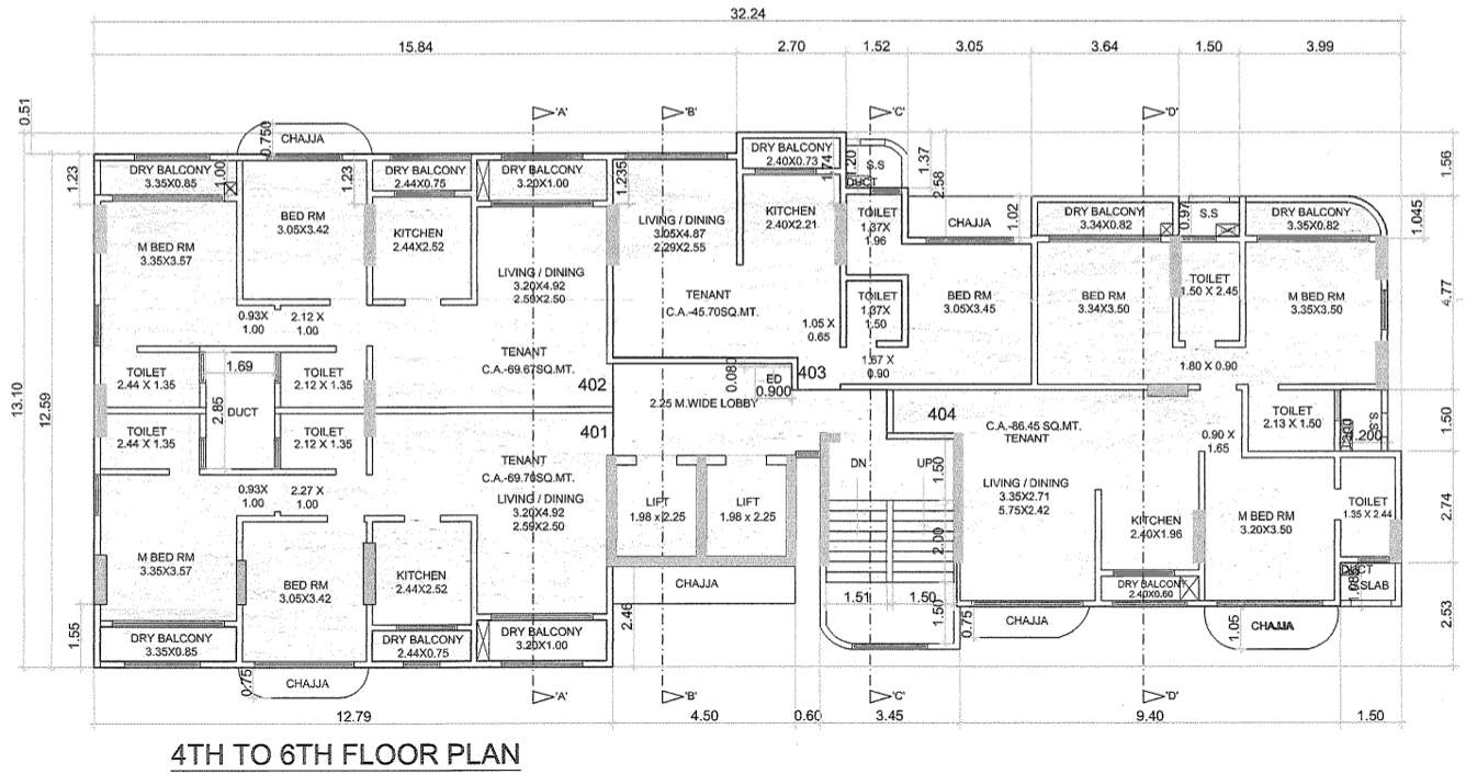
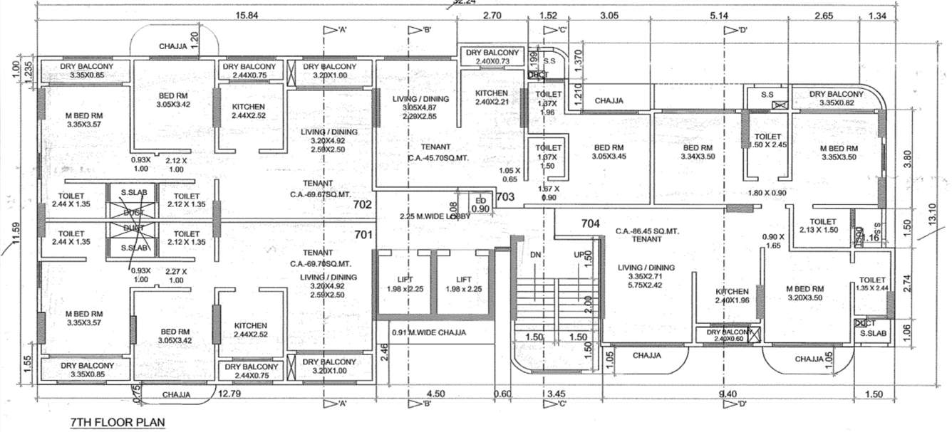
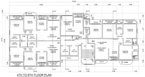
1,2,3 BHK Apartment
492 - 931 sq ft



Come home to comfortable living at Ami Housing new project Vrindavan Nagar. Designed to meet all your expectations with class written all over, Vrindavan Nagar is equipped with a wide range of amenities. The aesthetic combination of innovative design and quality construction enhance the overall appeal of this complex.



