

- Possession Start DateNov'18
- StatusCompleted
- Total Area3 Acres
- Launch DateAug'13
- AvailabilityResale
Salient Features
- Moraj Maa Shrishti Offers Facilities Such As Gymnasium And Lift.
- It Also Has Amenity Like Swimming Pool.
More about Maa Shrishti & Maa Smriti
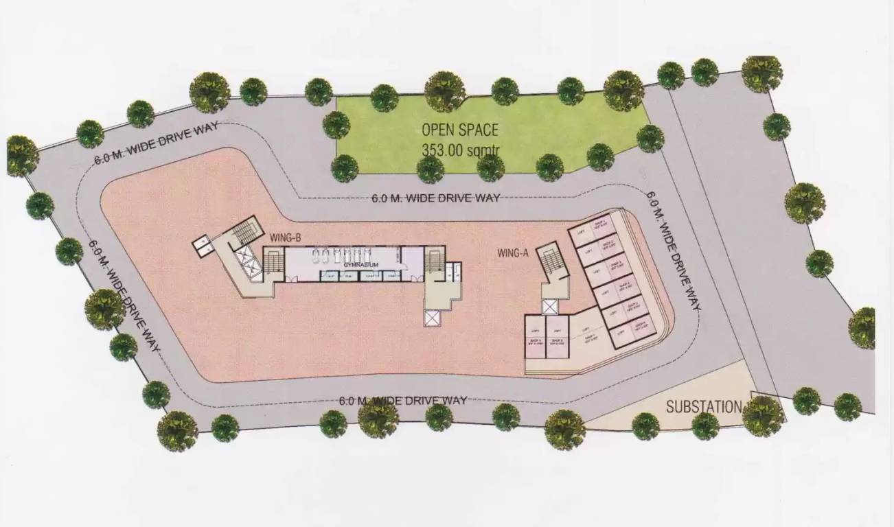
Maa Shrushti is registered in RERA under new projects as follows - Maa Shrishti Wing B P52000000480 Moraj Maa Shrushti is a housing community located at Khopoli, Mumbai. The project containing a total of 91 apartments is presently under construction. The 2 BHK apartments offered by the project measuring in sizes ranging from 885 to 990 sq ft and priced between Rs.28.3 and 31.7 lakh are available to the buyers from the builder as well as via resale of property. The project sprawled over an area o...View more
- 1 BHK
- 2 BHK
- Others
- Gymnasium
- Children's play area
- 24 X 7 Security
- Power Backup
- Maintenance Staff
- Lift Available
- 24 Hours Water Supply
- Community Hall
- Fire Fighting System
- Landscape Garden and Tree Planting
- Water Storage
Maa Shrishti & Maa Smriti Gallery

About Moraj Infratech

- Years of experience27
- Total Projects16
- Ongoing Projects2































