
PROJECT RERA ID : P51800034540
Rajendra Nagar Swagat CHSL
₹ 87.18 L - ₹ 2.13 Cr
Builder Price
See inclusions
1, 2, 3 BHK
Apartment
338 - 827 sq ft
Carpet Area
Project Location
Borivali East, Mumbai
Overview
- Feb'27Possession Start Date
- Under ConstructionStatus
- 0.29 AcresTotal Area
- 100Total Launched apartments
- Mar'22Launch Date
- NewAvailability
Salient Features
- Well connected to Western Express Highway
- In close proximity to Metro station
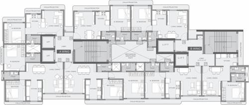
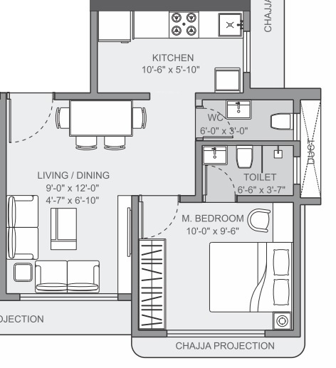
Rajendra Nagar Swagat CHSL Floor Plans
- 1 BHK
- 2 BHK
- 3 BHK
Report Error
Our Picks
- PriceConfigurationPossession
- Current Project
Rajendra Nagar Swagat CHSLby Riddhi ConstructionBorivali East, Mumbai₹ 87.18 L - ₹ 2.13 Cr1,2,3 BHK Apartment338 - 827 sq ftFeb '27 - Recommended
Summitby Rustomjee Builders MumbaiBorivali East, Mumbai₹ 2.57 Cr - ₹ 4.39 Cr2,3 BHK Apartment715 - 1,219 sq ftNov '23 - Recommended
Avirahi Wing Aby Fortune ConstructionsBorivali West, Mumbai₹ 3.22 Cr - ₹ 3.92 Cr3,4,5 BHK Apartment1,192 - 1,664 sq ftNov '23
Rajendra Nagar Swagat CHSL Amenities
- Closed Car Parking
- Sewerage (Chamber, Lines, Septic Tank , STP) :
- Treatment And Disposal Of Sewage And Sullage Water :
- Children's play area
- Gymnasium
- Car Parking
- Jogging Track
- Indoor Games
Rajendra Nagar Swagat CHSL Specifications
Doors
Main:
Laminated Flush Door
Internal:
Flush Door
Flooring
Toilets:
Anti Skid Tiles
Balcony:
Anti skid ceramic tiles
Living/Dining:
Vitrified Tiles
Master Bedroom:
Vitrified Tiles
Other Bedroom:
Vitrified Tiles
Kitchen:
Vitrified Tiles
Gallery
Rajendra Nagar Swagat CHSLElevation
Rajendra Nagar Swagat CHSLAmenities
Rajendra Nagar Swagat CHSLFloor Plans
Rajendra Nagar Swagat CHSLConstruction Updates
Rajendra Nagar Swagat CHSLOthers
Payment Plans

Contact NRI Helpdesk on
Whatsapp(Chat Only)
Whatsapp(Chat Only)
+91-96939-69347
Contact Helpdesk on
Whatsapp(Chat Only)
Whatsapp(Chat Only)
+91-96939-69347
About Riddhi Construction
Riddhi Construction
- 3
Total Projects - 1
Ongoing Projects - RERA ID
Similar Projects
- PT ASSIST
Rustomjee Summitby Rustomjee Builders MumbaiBorivali East, Mumbai₹ 2.57 Cr - ₹ 4.39 Cr - PT ASSIST
Fortune Avirahi Wing Aby Fortune ConstructionsBorivali West, Mumbai₹ 3.22 Cr - ₹ 3.92 Cr - PT ASSIST
Rivali Park WinterGreenby CCI Projects Pvt LtdBorivali East, MumbaiPrice on request - PT ASSIST
Teenmurty Summitby B G Shirke Group of CompaniesBorivali East, MumbaiPrice on request - PT ASSIST
Lodha Kandivali Projectsby Lodha GroupBorivali East, Mumbai₹ 2.07 Cr - ₹ 2.75 Cr
Discuss about Rajendra Nagar Swagat CHSL
comment
Disclaimer
PropTiger.com is not marketing this real estate project (“Project”) and is not acting on behalf of the developer of this Project. The Project has been displayed for information purposes only. The information displayed here is not provided by the developer and hence shall not be construed as an offer for sale or an advertisement for sale by PropTiger.com or by the developer.
The information and data published herein with respect to this Project are collected from publicly available sources. PropTiger.com does not validate or confirm the veracity of the information or guarantee its authenticity or the compliance of the Project with applicable law in particular the Real Estate (Regulation and Development) Act, 2016 (“Act”). Read Disclaimer
The information and data published herein with respect to this Project are collected from publicly available sources. PropTiger.com does not validate or confirm the veracity of the information or guarantee its authenticity or the compliance of the Project with applicable law in particular the Real Estate (Regulation and Development) Act, 2016 (“Act”). Read Disclaimer










































