

- Possession Start DateNov'19
- StatusCompleted
- Total Launched apartments128
- Launch DateSep'16
- AvailabilityResale
- RERA IDP51700001321
More about GBK Vishwajeet Manor
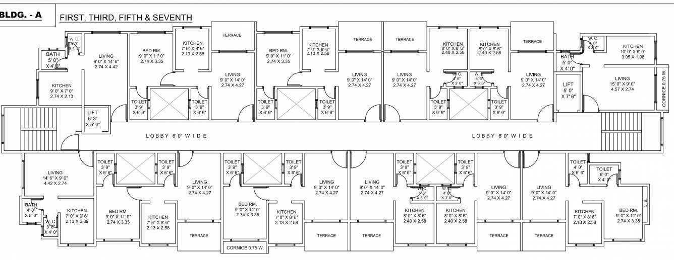
Launched by GBK Group, Vishwajeet Manor, is a premium housing project located at Badlapur East in Mumbai. Offering 1 BHK Apartment in Beyond Thane are available from 380 sqft to 653 sqft. This project hosts amenities like Overhead Tank & under Ground Tank, Lift Available, Water Supply, Borwell Water etc. Available at attractive price points starting at @Rs 3,300 per sqft, the Apartment are available for sale from Rs 12.54 lacs to Rs 21.55 lacs. The project is Under Construction project and p...View more
![HDFC (5244) HDFC (5244)]()
![Axis Bank Axis Bank]()
![PNB Housing PNB Housing]()
![Indiabulls Indiabulls]()
![Citibank Citibank]()
![DHFL DHFL]()
![L&T Housing (DSA_LOSOT) L&T Housing (DSA_LOSOT)]()
![IIFL IIFL]()
- + 3 more banksshow less
Project Specifications
- 1 BHK
- Lift Available
- Borwell Water
- 24X7 Water Supply
- Overhead Tank & under Ground Tank
- Gymnasium
- Intercom
- Open_Car_Parking
- Children's play area
- 24 Hours Water Supply
- CCTV
- Inverter Back Up For All Units
- Landscape Garden and Tree Planting
- Gazebo
GBK Vishwajeet Manor Gallery
About GBK Group

- Total Projects25
- Ongoing Projects10









































