

- Possession Start DateNov'17
- StatusCompleted
- Total Area10 Acres
- Total Launched plots97
- Launch DateAug'15
- AvailabilityNew and Resale
- RERA IDPRM/KA/RERA/1257/334/PR/171118/001117
More about Land Trades Emerald Bay
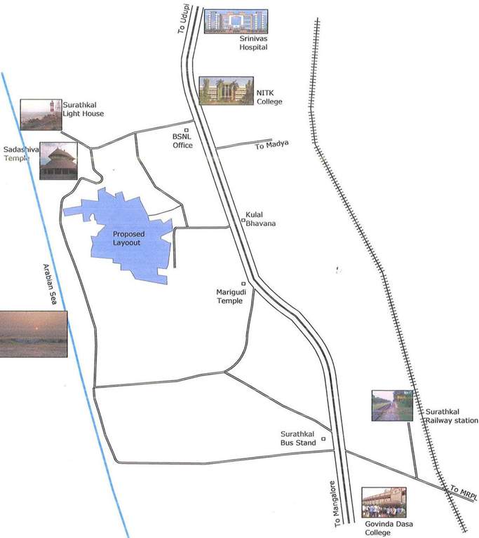
Suratkal area of Managlore has given land for the many real estate projects which are already in the process of development. The Land Trades Emerald Bay Residency is delivering spacious and premium plots. The state of plots is all set for moving in. All the necessary requirements like banks, ATMs, petrol pumps, hospitals, higher education schools, grocery shops, bus stations, schools, restaurants, railway stations etc are all present in the neighbourhood of the project. The project offers other ...View more
Project Specifications
Land Trades Emerald Bay Price List
| Area | Price |
|---|---|
| 2222 sq ft | ₹ 39.55 L |
| 2296 sq ft | ₹ 40.87 L |
| 2313 sq ft | ₹ 41.17 L |
| 2344 sq ft | ₹ 41.72 L |
| 2396 sq ft | ₹ 42.65 L |
| 2614 sq ft | ₹ 46.53 L |
| 2675 sq ft | ₹ 47.62 L |
| 2688 sq ft | ₹ 47.85 L |
| 2914 sq ft | ₹ 51.87 L |
| 3219 sq ft | ₹ 57.30 L |
| 3398 sq ft | ₹ 60.48 L |
| 3485 sq ft | ₹ 62.03 L |
| 5571 sq ft | ₹ 99.16 L |
- Swimming Pool
- Children's play area
- Club House
- Independent Transformer And Street Lights
- Sewage Treatment Plant
- Broad Storm Water Drain
- Gymnasium
- Car Parking
- Banquet Hall
- 24X7 Water Supply
- Intercom
- Fire Fighting System
- Full Power Backup
- Lift(s)
- Maintenance Staff
- Internal Street Lights
- Mini Theatre
- Chess Board
- Sauna Bath
- Bar/ Chill-out Lounge
- Waiting Lounge
- Steam Room
- Yoga/ Meditation Area
- Table Tennis
- Paved Compound
- Jacuzzi
- Theme Park
Land Trades Emerald Bay Gallery
About Land Trades Builders And Developers

- Years of experience35
- Total Projects25
- Ongoing Projects6



























