

- Possession Start DateNov'18
- StatusCompleted
- Total Launched apartments37
- Launch DateSep'16
- AvailabilityResale
More about Tirath Matashree Abasan
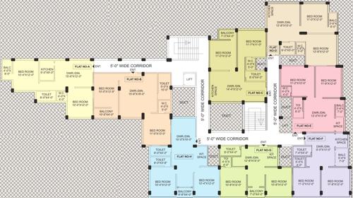
Tirath has launched its premium housing project, Matashree Abasan, in Chandannagar, Kolkata. The project offers 2 BHK Apartment from 763 sqft to 920 sqft in Kolkata West. Among the many luxurious amenities that the project hosts are Children's play area, Well Maintained Sitting Facility, Closed Car Parking, Open Car Parking, CCTV Camera etc. Starting at @Rs 3,200 per sqft,Apartment are available for sale from Rs 24.42 lacs to Rs 29.44 lacs. Tirath Matashree Abasan is Under Construction project a...View more
![HDFC (5244) HDFC (5244)]()
![SBI - DEL02592587P SBI - DEL02592587P]()
![Axis Bank Axis Bank]()
![PNB Housing PNB Housing]()
![Citibank Citibank]()
![DHFL DHFL]()
![IIFL IIFL]()
- + 2 more banksshow less
Project Specifications
- 2 BHK
- Children's play area
- 24 X 7 Security
- Power Backup
- Car Parking
- Lift Available
- Open Car Parking
- Closed Car Parking
- Well Maintained Sitting Facility
- Cctv
- Water Softner Plant
Tirath Matashree Abasan Gallery
About Tirath Project

- Years of experience50
- Total Projects10
- Ongoing Projects0







































