
Ganesh Sachi Residency Phase II
₹ 32.97 L - ₹ 68.87 L
Builder Price
See inclusions
1, 2, 3 BHK
Apartment
999 - 2,087 sq ft
Builtup area
Project Location
Shahupuri, Kolhapur
Overview
- Dec'14Possession Start Date
- CompletedStatus
- 19Total Launched apartments
- May'13Launch Date
- New and ResaleAvailability
Salient Features
- Spacious properties
- Known for amenities like rainwater harvesting
- Schools, recreational, hospitals within close vicinity
More about Ganesh Sachi Residency Phase II
Sachi Residency Phase II, a residential concept of community living, is a widely spread residential project by the Om Ganesh Constructions. Om Ganesh Constructions is India's premier real estate and infrastructure development company that has a good experience in this field and known for delivering construction projects of supreme quality. Sachi Residency Phase II is located in Shahupuri, Kolhapur. Offering a blessed nature friendly lifestyle in the heart of the City. It consists of a total of 1...read more
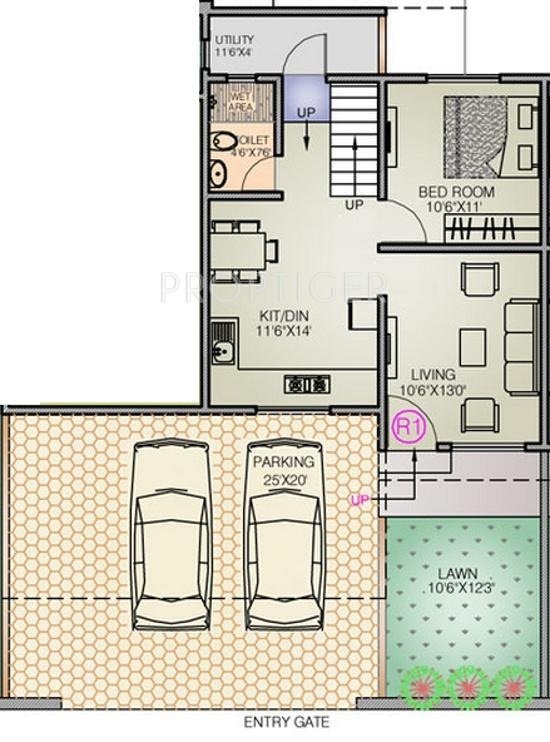
Ganesh Sachi Residency Phase II Floor Plans
- 1 BHK
- 2 BHK
- 3 BHK
| Floor Plan | Area | Builder Price |
|---|---|---|
![]() | 999 sq ft (1BHK+1T) | ₹ 32.97 L |
Report Error
Ganesh Sachi Residency Phase II Amenities
- Rain Water Harvesting
- Intercom
- 24 X 7 Security
- Power Backup
Ganesh Sachi Residency Phase II Specifications
Doors
Internal:
Teak Wood Frame
Main:
Decorative with Brass Fittings
Flooring
Balcony:
Anti Skid Tiles
Kitchen:
Vitrified Tiles
Living/Dining:
Vitrified Tiles
Master Bedroom:
Vitrified Tiles
Other Bedroom:
Vitrified Tiles
Toilets:
Anti Skid Tiles
Gallery
Ganesh Sachi Residency Phase IIElevation
Ganesh Sachi Residency Phase IIFloor Plans
Contact NRI Helpdesk on
Whatsapp(Chat Only)
Whatsapp(Chat Only)
+91-96939-69347
Contact Helpdesk on
Whatsapp(Chat Only)
Whatsapp(Chat Only)
+91-96939-69347
About Om Ganesh Constructions

- 35
Years of Experience - 3
Total Projects - 1
Ongoing Projects - RERA ID
Discuss about Ganesh Sachi Residency Phase II
comment
Disclaimer
PropTiger.com is not marketing this real estate project (“Project”) and is not acting on behalf of the developer of this Project. The Project has been displayed for information purposes only. The information displayed here is not provided by the developer and hence shall not be construed as an offer for sale or an advertisement for sale by PropTiger.com or by the developer.
The information and data published herein with respect to this Project are collected from publicly available sources. PropTiger.com does not validate or confirm the veracity of the information or guarantee its authenticity or the compliance of the Project with applicable law in particular the Real Estate (Regulation and Development) Act, 2016 (“Act”). Read Disclaimer
The information and data published herein with respect to this Project are collected from publicly available sources. PropTiger.com does not validate or confirm the veracity of the information or guarantee its authenticity or the compliance of the Project with applicable law in particular the Real Estate (Regulation and Development) Act, 2016 (“Act”). Read Disclaimer


















