

Price on request
Builder Price
Configuration
2 BHK
Carpet Area
656 - 668 sq ft
Possession Status
Under Construction
Overview
- Possession Start DateDec'27
- StatusUnder Construction
- Total Area0.19 Acres
- Launch DateJun'22
- AvailabilityNew
- RERA IDPR/GJ/KHEDA/NADIAD/Others/RAA11013/121222
More about Krishna Santram Sanidhya
Launched by Krishna Realty Ahmedabad, Santram Sanidhya, is a premium housing project located at Nadiad in Kheda. Offering 2 BHK Apartment in Kheda East are available from 0 sqft. This project hosts amenities like Sensor operated doors and lifts, 24X7 Water Supply, Fire Sprinklers, Garbage Disposal, Internal Roads & Footpaths etc. The project is Under Construction project and possession in Dec 27.
Project Specifications
Flooring
Balcony:
Vitrified Tiles
Kitchen:
Vitrified Tiles
Living/Dining:
Vitrified Tiles
Master Bedroom:
Vitrified Tiles
Other Bedroom:
Vitrified Tiles
Toilets:
Vitrified Tiles
Walls
Interior:
Acrylic Paint
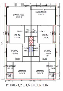
Krishna Santram Sanidhya Floor Plans
- 2 BHK
-
Krishna Santram Sanidhya Amenities
- Community Hall
- 24X7 Water Supply
- Internal Roads & Footpaths
- Infinity Pool
- Garbage Disposal
- Sensor operated doors and lifts
- Vertical Garden
- Entrance Gate Security Cabin
- Fire Sprinklers
Krishna Santram Sanidhya Gallery
About Krishna Realty Ahmedabad
- Total Projects1
- Ongoing Projects1



















