

Price on request
Builder Price
Configuration
2, 3 BHK
Carpet Area
640 - 846 sq ft
Possession Status
Completed
Overview
- Possession Start DateDec'24
- StatusCompleted
- Total Area0.26 Acres
- Launch DateMar'21
- AvailabilityResale
- RERA IDPR/GJ/JAMNAGAR/KALAVAD/Jamnagar Municipal Corporation/MAA13720/250624/311224
Project Specifications
Flooring
Kitchen:
Vitrified Tiles
Living/Dining:
Vitrified Tiles
Master Bedroom:
Vitrified Tiles
Other Bedroom:
Vitrified Tiles
Toilets:
Vitrified Tiles
Walls
Exterior:
Acrylic Paint
Interior:
Putty on Walls
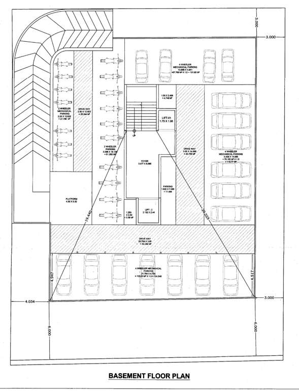
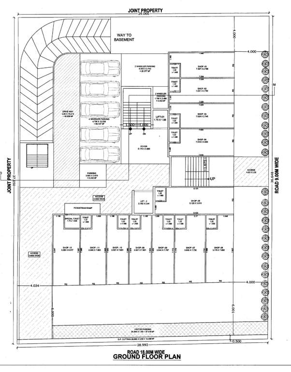
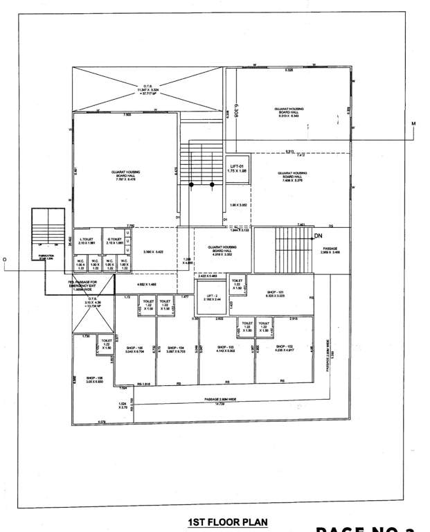
Vyapti Vandemataram Prime Floor Plans
- 2 BHK
- 3 BHK
-
-
Vyapti Vandemataram Prime Amenities
- Swimming Pool
- Closed Car Parking
- Community Hall
- 24X7 Water Supply
- 24x7 CCTV Surveillance
- Fire Fighting System
- Full Power Backup
- Internal Roads & Footpaths
- Lift(s)
- Sewage Treatment Plant
- RO Water System
- Energy management
- Landscape Garden and Tree Planting
- Water Conservation, Rain water Harvesting
Vyapti Vandemataram Prime Gallery
About Vyapti Vandemataram
- Total Projects2
- Ongoing Projects1























