

- Possession Start DateSep'14
- StatusCompleted
- Total Launched apartments15
- Launch DateDec'12
- AvailabilityResale
More about Royal Komala Nivas
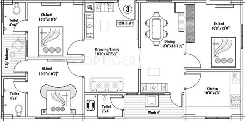
Royal Home Komala Nivas in Nallakunta, Hyderabad is offering 2 and 3 BHK apartments which have area of 1,094 to 1,231 sq ft. The apartments are ready to be moved into and the apartments are available only via resale. There are a total number of 15 apartments in the building spread across 0.11 acres of land. Nallakunta, one of the popular and best places to have property in Hyderabad is located in suburb Hyderabad Central. It lies near Pocharam, Banjara Hills, Kukatpally, Hitech City, Shadna...View more
![HDFC (5244) HDFC (5244)]()
![Axis Bank Axis Bank]()
![PNB Housing PNB Housing]()
![Indiabulls Indiabulls]()
![Citibank Citibank]()
![DHFL DHFL]()
![L&T Housing (DSA_LOSOT) L&T Housing (DSA_LOSOT)]()
![IIFL IIFL]()
- + 3 more banksshow less
- 2 BHK
- 3 BHK
Royal Komala Nivas Gallery
About Royal Home

- Years of experience28
- Total Projects21
- Ongoing Projects0


























