

- Possession Start DateOct'14
- StatusCompleted
- Total Area40 Acres
- Total Launched villas39
- Launch DateApr'12
- AvailabilityResale
More about Babukhan Lakefront
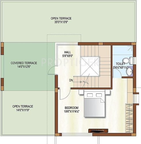
Kokapet region of Hyderabad is getting settled by the ongoing real estate projects of Babukhan Properties Lakefront. This company has developed a project which offers 4 apartments. The area of the villa is about 3050 to 3884 sq ft. the project is all set for moving in purpose. There are various other developments projects going on in this area. This area has all required necessities like school, hospital, park, restaurant, bank, petrol pump, ATM, bus station, etc. all in the neighbourhood. The d...View more
![HDFC (5244) HDFC (5244)]()
![Axis Bank Axis Bank]()
![PNB Housing PNB Housing]()
![Indiabulls Indiabulls]()
![Citibank Citibank]()
![DHFL DHFL]()
![L&T Housing (DSA_LOSOT) L&T Housing (DSA_LOSOT)]()
![IIFL IIFL]()
- + 3 more banksshow less
Project Specifications
- 4 BHK
- Swimming Pool
- Children's play area
- Club House
- Sports Facility
- 100% power backup
- Jogging Track
- All round compound wall
- Security room at gate linked via intercom to all villas
- Landscape Garden and Tree Planting
Babukhan Lakefront Gallery
About Babukhan

- Years of experience97
- Total Projects7
- Ongoing Projects2







































