

- Possession Start DateJan'14
- StatusCompleted
- Total Launched apartments18
- Launch DateSep'12
- AvailabilityResale
More about Rami Reddy Laxmi Ram Trident
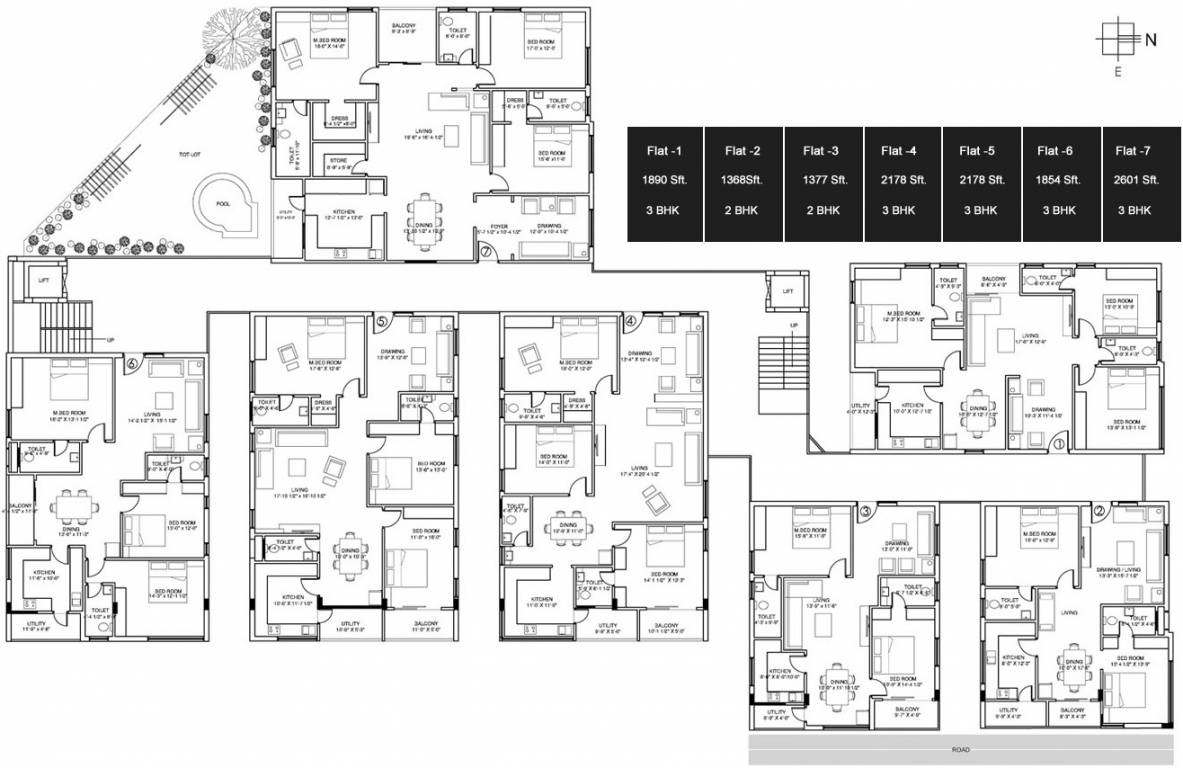
Launched by Rami Reddy, Laxmi Ram Trident, is a premium housing project located at Attapur in Hyderabad. Offering 2, 3 BHK Apartment in ORR South are available from 1368 sqft to 2601 sqft. This project hosts amenities like Water Supply, Power Backup, Swimming Pool, Visitors Lounge, 24 X 7 Security etc. The project is Completed project and possession in Feb 14.
![HDFC (5244) HDFC (5244)]()
![SBI - DEL02592587P SBI - DEL02592587P]()
![Axis Bank Axis Bank]()
![PNB Housing PNB Housing]()
![Indiabulls Indiabulls]()
![Citibank Citibank]()
![DHFL DHFL]()
- ICICI
![Oriental Bank of Commerce Oriental Bank of Commerce]()
![L&T Housing (DSA_LOSOT) L&T Housing (DSA_LOSOT)]()
![IIFL IIFL]()
- + 6 more banksshow less
Project Specifications
- 2 BHK
- 3 BHK
- Car Parking
- Children's play area
- Gymnasium
- Swimming Pool
- 24 X 7 Security
- Power Backup
- Lift Available
- 24X7 Water Supply
- Conference Room
- Visitor Parking
Rami Reddy Laxmi Ram Trident Gallery

About Rami Reddy

- Years of experience25
- Total Projects21
- Ongoing Projects4








































