

- Possession Start DateNov'19
- StatusCompleted
- Total Area300 Acres
- Total Launched villas257
- Launch DateJul'10
- AvailabilityNew and Resale
More about Unitech Karma Lake Lands
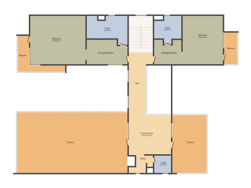
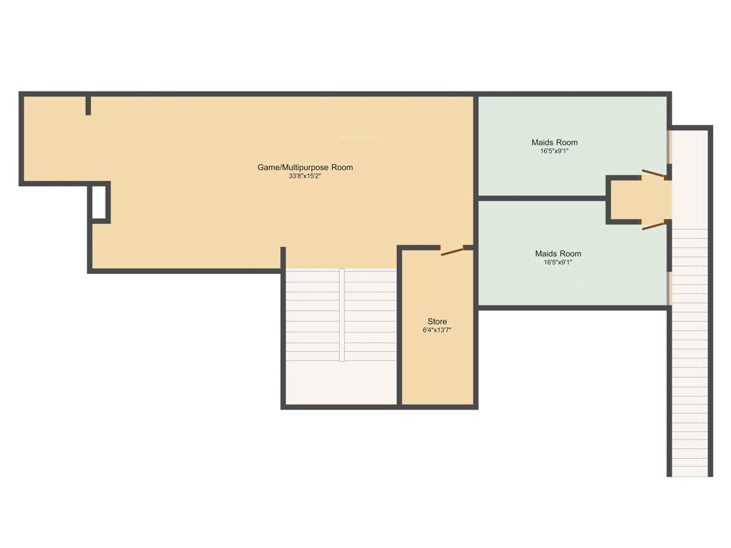
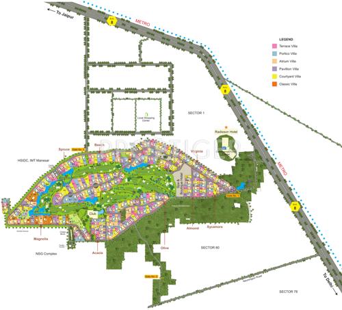
Unitech has developed a residential complex Karma Lakelands in NH8, Gurgaon. Spread across a total area of 300 acres it is still under construction. The site offers 4BHK apartments. It is close to parks, hotels, restaurants, ATMs, banks, bus stations and play schools. Sector 80 is a known locality in Gurgaon located in the suburb of NH8. Sector 80 is surrounded by developed areas Sector 76, 77, 78, 79, 81, 82, 82A, 83 85, and 86. There are many reputed schools and hospitals. Popular schools are ...View more
![HDFC (5244) HDFC (5244)]()
![SBI - DEL02592587P SBI - DEL02592587P]()
![Axis Bank Axis Bank]()
![PNB Housing PNB Housing]()
- LIC Housing Finance
Project Specifications
- 4 BHK
- Gymnasium
- Swimming Pool
- Children's play area
- Club House
- Golf Course
- Banquet Hall
- Tennis Court
- Toddler Pool
- Full Power Backup
- Spa
- Squash Court
- Jogging Track
- Indoor Games
- 24 X 7 Security
- Shopping Mall
- Library
- Maintenance Staff
- Salon
- Dart Board
- Cigar Lounge
- Yoga/Meditation Area
- Billiards/ Snooker Table
- Chess Board
- Security Cabin
- Solar Lighting
- Solar Water Heating
- Flower Garden
- Carrom
- Grocery Shop
- EV Charging Point
- Landscape Garden and Tree Planting
Unitech Karma Lake Lands - Brochure
Unitech Karma Lake Lands Gallery
Home Loan Calculator
About Unitech Limited

- Years of experience56
- Total Projects96
- Ongoing Projects9



























































