


- Possession Start DateMar'27
- StatusUnder Construction
- Total Area47 Acres
- Total Launched apartments1000
- Launch DateJan'20
- AvailabilityNew
- RERA IDGGM/391/123/2020/07 OF 2020, GGM/390/122/2020/06 OF 2020
Salient Features
- One of Gurugram's first green-rated townships, boasting IGBC Gold pre-certification
- Apartments are equipped with VRF air conditioning systems.
- The property is Vastu compliant.
- The property offers a conference room, reflexology park, amphitheater, library, and facilities for the disabled.
- Amenities include a cricket pitch, gymnasium, squash court, jogging track, and lawn tennis court.
- W Pratiksha Hospital is situated 3 km away.
- Gurugram Public School is located 3.8 km away.
More about Birla Navya Gurugram
Birla Navya has bagged IGBC Gold pre-certification, and that’s one of the primary reasons why the housing project is all set to be one of the first green-rated townships in the satellite city of Gurugram. The first development phase at Birla Navya, Sector 63A - Gurugram includes three pockets — Drisha 1A, Amoda I and Amoda II. All three pockets are independent and act as separate gated communities, but they have seamless connectivity. Housing pattern, planning, amenities, and infrast...View more
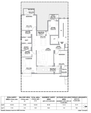
Project Specifications
- 2 BHK
- 3 BHK
- 4 BHK
- Children's play area
- Club House
- Sports Facility
- Intercom
- Power Backup
- Lift Available
- CCTV
- Community Hall
- Gated Community
- Rain Water Harvesting
- Indoor Games
- Maintenance Staff
- Car Parking
- Vaastu Compliant
- ATM
- Closed Car Parking
- 24 X 7 Security
- Cafeteria
- Gymnasium
- Jogging Track
- Spa/Sauna/Steam
- Swimming Pool
- Nature Trail
- Pet Care
- Working Spaces
- Health Facilities
- Badminton Court
- Tennis Court
- Cricket Pitch
- 24 Hours Water Supply
- Fire Fighting System
- Ramps for Handicap friendliness
- Sewage Treatment Plant
- Squash Court
- Skating Rink
- Banquet Hall
- Amphitheater
- Library
- Landscaped Gardens
- Spa
- Business Center
- Internal Roads
- Internet/Wi-Fi
- Landscape Garden and Tree Planting
- Central Cooling System
- Reserved Parking
- Visitor Parking
- Conference Room
- Water Storage
- Party Lawn
- Vastu Compliant
- Restaurant
- Air Conditioned
- Football Field
- Mini Theatre
- Terrace Garden
- Yoga/Meditation Area
- Reflexology Park
- Security Cabin
- Solar Lighting
- Senior Citizen Siteout
- Video Door Security
- Salon
- Flower Garden
- Paved Compound
- Business Suites
- Entrance Lobby
- Grocery Shop
- Lawn Tennis Court
- RO Water System
- Fire Sprinklers
Birla Navya Gurugram - Brochure
Birla Navya Gurugram Gallery
Home Loan Calculator
Payment Plans

About Birla Estates

- Total Projects16
- Ongoing Projects14































