India's best property portal to buy property in India - Proptiger.com
Possession : Jan'18
Rera
Wishfield The Carmine
Price on request
Builder Price
Configuration
3 BHK
Builtup area1 sq M = 10.76 sq ft
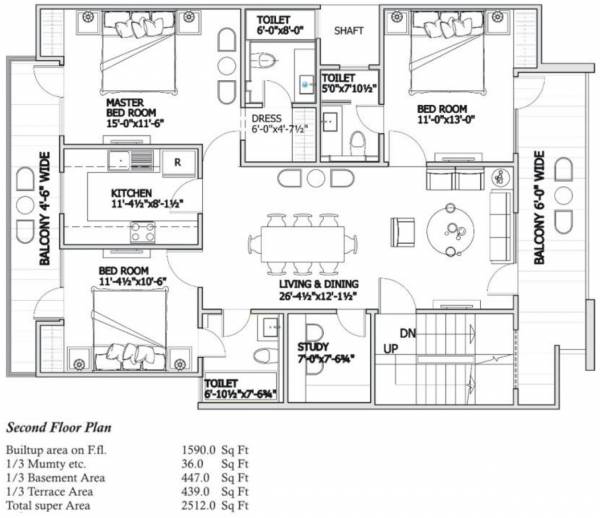
2,700 sq ft
Possession Status
Completed
Overview
  • Possession Start Date
    Jan'18
  • Status
    Completed
  • Total Launched apartments
    36
  • Launch Date
    Feb'14
  • Availability
    Resale
  • RERA ID
    414 of 2018

Salient Features

  • 3 open side properties, spacious properties
  • Spectacular view of national park
  • Landscaped gardens, swimming pool, olympic size swimming pool, tree plantation to enhance your living style
  • Civic amenities like schools, malls, shopping, hospitals, restaurants, banks
Approved for Home loans from following banks
  • HDFC (5244)
  • SBI - DEL02592587P
  • PNB Housing

Project Specifications

Flooring
Balcony:
Anti Skid Tiles
Toilets:
Ceramic Tiles
Kitchen:
Imported marble flooring
Other Bedroom:
Imported Marble Flooring
Living/Dining:
Imported Marble Flooring
Master Bedroom:
Imported Marble Flooring
Walls
Interior:
Plastic Emulsion Paint
Doors
Internal:
Flush Door
Main:
Flush Door
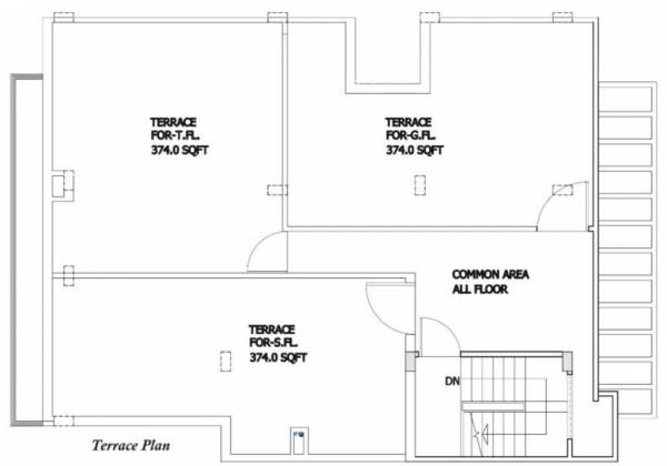
Wishfield The Carmine Floor Plans
  • 3 BHK
-
Wishfield The Carmine Amenities

About Wishfield

  • Total Projects1
  • Ongoing Projects0

More projects by Wishfield

Similar Projects

Developer Network

  • 400+
    Reputed Developers