

- Possession Start DateNov'18
- StatusCompleted
- Total Area6 Acres
- Total Launched apartments1106
- Launch DateAug'14
- AvailabilityResale
- RERA IDGGM/326/58/2019/20
Salient Features
- 10 Min drive Golf Course Extension
- 20 Min drive of Medanta Hospital
- Close to Industrial Area Sohna
- Second Project in Haryana Under Affordable Housing Scheme
- First Project Approved in Sohna, Gurgaon Under Affordable Housing Scheme
More about MVN Athens
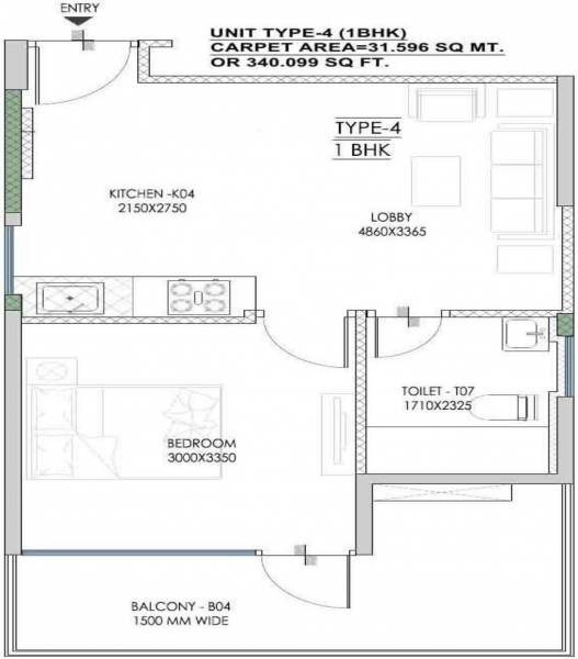
A realty project by MVN Infrastructure, Athens is strategically situated at Sector 5, Sohna, Gurgaon.. The project comprises of a total of 1078 units in all and is spread over an area of 6.5 acres. Buyers can choose from 1 BHK and 2 BHK apartments priced at INR 12.7 lakh and 17.8 lakh respectively. Apartment sizes range from 570 to 800 sq ft.Located in Sector 5, Sohna, the project is close to Sectors 33, 14, 35, 2 and 7 among others. There are several reputed educational institutions and hospita...View more
Project Specifications
- 1 BHK
- 2 BHK
- Car Parking
- Rain Water Harvesting
- Pollution Free Environment
- Fully Secured Gated Complex
- Children's play area
- 24 X 7 Security
- Lift Available
- ATM
- Full_Power_Backup
- Gymnasium
- CCTV
- Swimming Pool
- Shopping Mall
- 24 Hours Water Supply
- Community Hall
- Service Lift
- Sewage Treatment Plant
- Creche
- Multipurpose Room
- Landscaped_Gardens
- Fire Fighting System
- Landscape Garden and Tree Planting
- Escalators
- Day Care Center
- Flower Garden
- Paved Compound
- Garbage Disposal
- Multipurpose Hall
- Reserved Parking
- Visitor Parking
- Street Lighting
- Water Conservation, Rain water Harvesting
MVN Athens Gallery
Payment Plans

About MVN Infrastructure

- Years of experience43
- Total Projects7
- Ongoing Projects4



















































