

- Possession Start DateMay'18
- StatusCompleted
- Total Launched apartments10
- Launch DateFeb'15
- AvailabilityResale
- RERA ID.
More about CC Builders Alphine
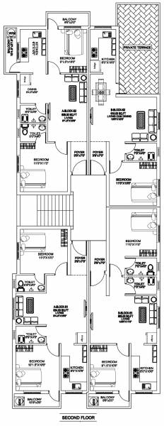
CC Builders Alphine is located in Vandalur, Chennai. The housing community offers 1 and 2BHK flats which are under construction currently. Home owners shall be provided with amenities such as maintenance staff, parking space for two wheelers and high speed lifts in all the towers. CC Builders is one of Chennai’s emerging leaders in the property market. They have fifty six projects to their name, sixteen of which are under construction. Some of them are located in Thandalam and Pammal. Vand...View more
![HDFC (5244) HDFC (5244)]()
![Axis Bank Axis Bank]()
![PNB Housing PNB Housing]()
![Indiabulls Indiabulls]()
![Citibank Citibank]()
![DHFL DHFL]()
![L&T Housing (DSA_LOSOT) L&T Housing (DSA_LOSOT)]()
![IIFL IIFL]()
- + 3 more banksshow less
Project Specifications
- 1 BHK
- 2 BHK
- Maintenance Staff
- Power Backup
- Car Parking
- 24X7 Water Supply
- Overhead Tank
- U.G. Sump
- Septic Tank
- Fire Fighting System
- Jogging Track
- Rain Water Harvesting
- Landscape Garden and Tree Planting
- Paved Compound
CC Builders Alphine Gallery
About CC Builders

- Total Projects73
- Ongoing Projects0































