S Promoters Royapuram


- Possession Start DateNov'13
- StatusCompleted
- Total Launched villas1
- Launch DateOct'12
- AvailabilityResale
More about S Promoters Royapuram
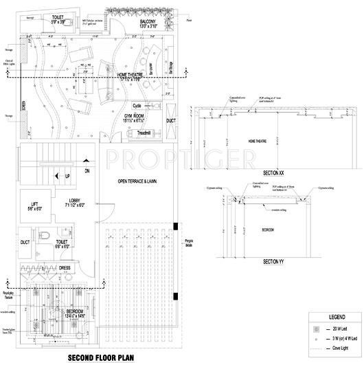
S Promoters Royapuram is a residential complex located at Tiruvottiyur, Chennai. The project delivers well designed and spacious ‘ready to move in’ villa to its residents. Set amidst a pollution free environment the project comes with ample open spaces. The project is located in close proximity to schools, hospitals, shopping malls and entertainment centers. Royapuram not only offers the comfort of living but also the peace of mind. The project comes with a gymnasium.Tiruvottiyur is...View more
![HDFC (5244) HDFC (5244)]()
![Axis Bank Axis Bank]()
![PNB Housing PNB Housing]()
![Indiabulls Indiabulls]()
![Citibank Citibank]()
![DHFL DHFL]()
![L&T Housing (DSA_LOSOT) L&T Housing (DSA_LOSOT)]()
![IIFL IIFL]()
- + 3 more banksshow less
- 3 BHK
- Gymnasium
S Promoters Royapuram Gallery
About S Promoters

- Years of experience22
- Total Projects11
- Ongoing Projects0
























