

- Possession Start DateJul'18
- StatusCompleted
- Total Launched villas17
- Launch DateApr'16
- AvailabilityResale
More about DS DS Hill View Phase II
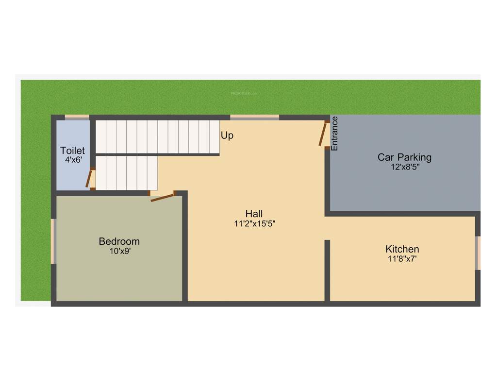
DS Hill View Phase II is a premium housing project launched by DS Construction Chennai in Singaperumal Koil, Chennai. These 2 BHK Villa in GST are available from 893 sqft to 900 sqft. Among the many luxurious amenities that the project hosts are Paved Compound, Gated Community etc. Starting at @Rs 3,500 per sqft, Villa are available at attractive price points. The Villa will be available for sale from Rs 31.26 lacs to Rs 31.50 lacs.
![HDFC (5244) HDFC (5244)]()
![Axis Bank Axis Bank]()
![PNB Housing PNB Housing]()
![Indiabulls Indiabulls]()
![Citibank Citibank]()
![DHFL DHFL]()
![L&T Housing (DSA_LOSOT) L&T Housing (DSA_LOSOT)]()
![IIFL IIFL]()
- + 3 more banksshow less
- 2 BHK
- Gated Community
- Paved Compound
DS DS Hill View Phase II Gallery

About DS Construction Chennai

- Total Projects1
- Ongoing Projects0





























