

- Possession Start DateNov'17
- StatusCompleted
- Total Launched apartments4
- Launch DateOct'16
- AvailabilityResale
More about RADS Bharadwaj Enclave
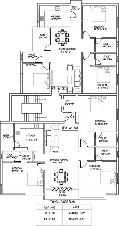
RADS Infrastructures has launched its premium housing project, Bharadwaj Enclave, in Raja Annamalai Puram, Chennai. The project offers 3 BHK Apartment from 1462 sqft to 1813 sqft in Chennai Central. Among the many luxurious amenities that the project hosts are Video Door Phone With Recording Facility, Toilet For Drivers And Servants, Vaastu Compliant, Lift Available, Car Parking etc. Starting at @Rs 16,500 per sqft,Apartment are available for sale from Rs 2.41 crore to Rs 2.99 crore. RADS Infras...View more
Project Specifications
- 3 BHK
- Power Backup
- Car Parking
- Lift Available
- Vaastu Compliant
- Toilet For Drivers And Servants
- Video Door Security
RADS Bharadwaj Enclave Gallery
Payment Plans

About RADS Infrastructures

- Total Projects5
- Ongoing Projects2

































