

- Possession Start DateJun'14
- StatusCompleted
- Total Launched apartments12
- Launch DateJul'13
- AvailabilityResale
More about Rahul Avadi
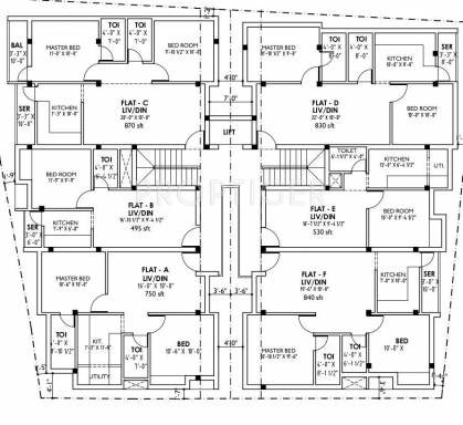
Rahul Avadi is one of the popular residential developments in Avadi, neighborhood of Chennai is Precisely planned for the Modern day city dweller, a pollution free living environment and wide open areas that offer not just the luxury of space, but peace of mind as well. The complex is in close vicinity to Schools, Shopping, Hospitals and Entertainment , making it an ideal place to live .It offers 2BHK Luxurious Apartments And Surrounded with most beautiful palaces.
- 1 BHK
- 2 BHK
Rahul Avadi Gallery
About Rahul

- Years of experience33
- Total Projects28
- Ongoing Projects0





















