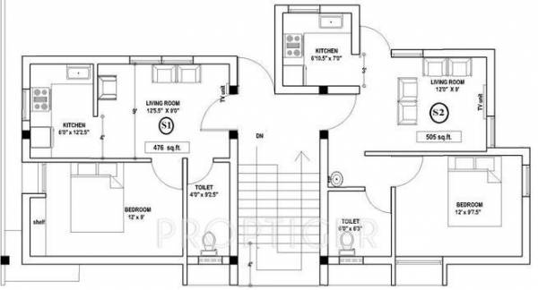
1,2,3 BHK Apartment
476 - 1,210 sq ft



Srinivasa Garden,Near Medavakkam, Chennai is Precisely planned for the Modern day city dweller, a pollution free living environment and wide open areas that offer not just the luxury of space, but peace of mind as well. Srinivasa Garden is in close vicinity to Schools, Shopping, Hospitals and Entertainment , making it an ideal place to live .It offers 1BHK,2BHK & 3BHK Luxurious Apartments And Surrounded with most beautiful palaces.








