

- Possession Start DateFeb'14
- StatusCompleted
- Total Launched apartments5
- Launch DateJun'12
- AvailabilityResale
More about SSB Sai Sakthivel
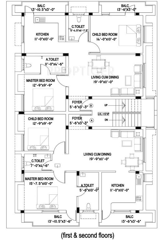
Launched by SSB, Sai Sakthivel, is a premium housing project located at Koyambedu in Chennai. Offering 2 BHK Apartment in Chennai West are available from 950 sqft to 1040 sqft. This project hosts amenities like Covered Car Parking, Separate Electric Meters , Water Softening Plant To Purify Bore Well (RO), Ornamental Entrance Gates, One Sump and Overhead Tank etc. The project is Completed project and possession in Mar 14.
![HDFC (5244) HDFC (5244)]()
![Axis Bank Axis Bank]()
![PNB Housing PNB Housing]()
![Indiabulls Indiabulls]()
![Citibank Citibank]()
![DHFL DHFL]()
![L&T Housing (DSA_LOSOT) L&T Housing (DSA_LOSOT)]()
![IIFL IIFL]()
- + 3 more banksshow less
Project Specifications
- 2 BHK
- Separate Electric Meters
- Elegant Elevation Features
- Water Softening Plant To Purify Bore Well (RO)
- Closed Car Parking
- One Sump and Overhead Tank
- Entrance Lobby
- Paved Compound
- Letter Box
SSB Sai Sakthivel Gallery
Payment Plans

About SSB

- Years of experience19
- Total Projects12
- Ongoing Projects0
































