

- Possession Start DateFeb'18
- StatusCompleted
- Total Area15 Acres
- Total Launched villas83
- Launch DateApr'13
- AvailabilityResale
Salient Features
- OMR Sholinganallur Junction 1.0 KM Away
- ECR Akkarai Beach 1.0 KM Away
- Designed By International Architect Hadi Teherani
- Luxury Lifestyle Amenities Including Indoor Golf Simulator And Sensory Gardens
- Provision for split AC in all rooms
More about Mantri Signature Villa
Mantri Group Signature Villa is a project designed by the Mantri developers at ECR link Road, Sholinganallur in Chennai. This projected is surrounded in between the greenery and the sea coasts. This project has villas that are well maintained and furnished with the best quality of work. The villas have individual swimming pools, private courtyard, gardens; children play area, outdoor games area, gyms, basketball post on the terrace, etc. There are various advantages of living here as it has good...View more
![HDFC (5244) HDFC (5244)]()
![Axis Bank Axis Bank]()
![PNB Housing PNB Housing]()
![Indiabulls Indiabulls]()
![Citibank Citibank]()
![DHFL DHFL]()
![L&T Housing (DSA_LOSOT) L&T Housing (DSA_LOSOT)]()
![IIFL IIFL]()
- + 3 more banksshow less
Project Specifications
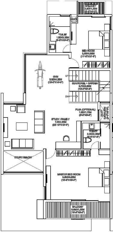
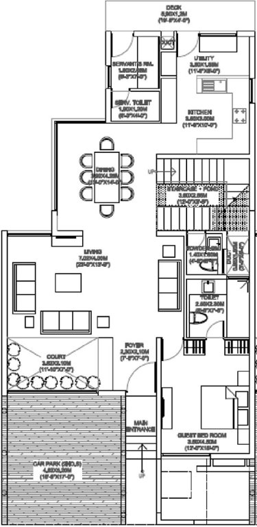
- 3 BHK
- 4 BHK
- 5 BHK
- Gymnasium
- Swimming Pool
- Children's play area
- Multipurpose Room
- Jogging Track
- Indoor Games
- Power Backup
- Rain Water Harvesting
- Intercom
- ATM
- Lift Available
- Club House
- 24 X 7 Security
- Car Parking
- Staff Quarter
- Vaastu Compliant
- Gated Community
- Aerobics Room
- Spa/Sauna/Steam
- Basketball Court
- Squash Court
- Tennis Court
- Library
- CCTV
- Cafeteria
- 24 Hours Water Supply
- Spa
- Landscaped Gardens
- Landscape Garden and Tree Planting
- Billiards/Snooker Table
- Chess Board
- Gazebo
- Sauna Bath
- Bar/Chill-out Lounge
- Day Care Center
- Fountains
- Laundromat
- Mini Theatre
- Reading Lounge
- Steam Room
- Terrace Garden
- Security Cabin
- Sun Deck
- Restaurant
- Video Door Security
- Salon
- Table Tennis
- Barbecue Area
- Card Room
- Paved Compound
- Carrom
- Grocery Shop
- Medical Store/Pharmacy
- Jacuzzi
- Lawn Tennis Court
- Multipurpose Hall
- Changing Room
Mantri Signature Villa Gallery
About Mantri Group

- Years of experience27
- Total Projects44
- Ongoing Projects0












































































