

- Possession Start DateJul'17
- StatusCompleted
- Total Launched villas54
- Launch DateJul'14
- AvailabilityNew and Resale
More about Shakti Sai Sivananda
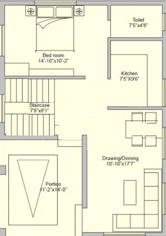
Sri Shakti Pasupati Sai Sivananda, located in Jayarsasan, Bhubaneswar, offers 3BHK apartments, with the price range being 36.2 lakh. There are 54 units in total, and the apartment sizes are of 1526 sq. ft. The amenities children’s play area, car parking, 24x7 security, power backup. The lowest rate of property here is Rs. 450 per sq. ft., while the highest rate is Rs. 2375 per sq. ft. The top builders are Jayshree Builders, Laxmi, Neelanchal Build Tech, Sri Shakti Pasupati etc.
- 3 BHK
- Children's play area
- 24 X 7 Security
- Power Backup
- Car Parking
- Jogging Track
Shakti Sai Sivananda Gallery
About Sri Shakti Pasupati

- Total Projects1
- Ongoing Projects0












