

- Possession Start DateNov'14
- StatusCompleted
- Total Launched apartments12
- Launch DateDec'13
- AvailabilityResale
More about Silicon Elegant Aerozone
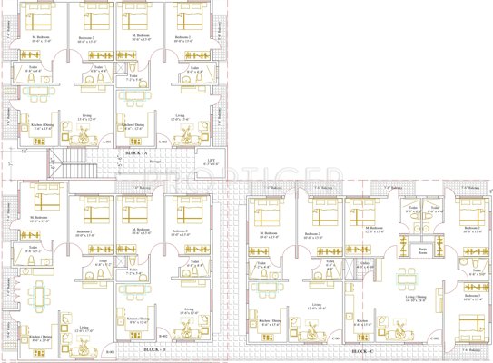
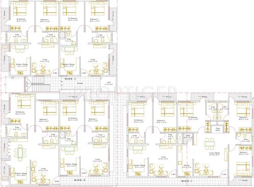
Silicon Elegant Aerozone is an apartment cluster located in Bagaluru, Bangalore. The community offers 2 and 3BHK flats which are ready to be moved into. A total of 12 units have been put up for sale. The sizes of the flats range from 894 to 1422 sq. ft. They have been priced between 24.1 and 30.6 lakhs. The flats are offered on resale and from the builder as well. The premise sprawls over an area of 0.15 acres, which includes several amenities such as children’s play area, rainwater harves...View more
Project Specifications
- 2 BHK
- 3 BHK
- Gymnasium
- Children's play area
- Rain Water Harvesting
- Power Backup
- Indoor Games
- Intercom
- 24 X 7 Security
- Covered
- Health Facilities
- Jogging Track
- Landscape Garden and Tree Planting
Silicon Elegant Aerozone Gallery
Payment Plans


About Silicon
- Total Projects4
- Ongoing Projects1



















