

- Possession Start DateFeb'12
- StatusCompleted
- Total Launched apartments84
- Launch DateFeb'11
- AvailabilityResale
More about Sukritha Sunnyvale
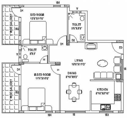
Sukritha Buildmann Sunnyvale Bangalore offers a range of 84 premium flats divided into 21 units per block. The apartments are ready to move in to and come in size of 1013 to 1800 sq. ft. as 2 and 3 bedroomed flats. The project is strategically located in close proximity to the KR Puram railway station and merely 5 km from ITPL. Each of the flats are designed with great care and attention to detail and in compliance to Vaastu norms to assure a harmonious and comfortable living ambience for its re...View more
![HDFC (5244) HDFC (5244)]()
![Axis Bank Axis Bank]()
![PNB Housing PNB Housing]()
![Indiabulls Indiabulls]()
![Citibank Citibank]()
![DHFL DHFL]()
![L&T Housing (DSA_LOSOT) L&T Housing (DSA_LOSOT)]()
![IIFL IIFL]()
- + 3 more banksshow less
Project Specifications
- 2 BHK
- 3 BHK
- Gymnasium
- Swimming Pool
- Children's play area
- Club House
- Indoor Games
- Rain Water Harvesting
- Intercom
- 24 X 7 Security
- Power Backup
- Maintenance Staff
- Community Hall
- Health Facilities
- Badminton Court
- Sewage Treatment Plant
- 24X7 Water Supply
- Landscape Garden and Tree Planting
- Club Rooftop
Sukritha Sunnyvale Gallery

About Sukritha Buildmann

- Years of experience37
- Total Projects3
- Ongoing Projects0






























