

- Possession Start DateDec'13
- StatusCompleted
- Total Launched villas97
- Launch DateNov'10
- AvailabilityResale
Salient Features
- Schools, shopping, hospitals are situated in close vicinity
- Covered by green space, easy transportation connectivity
- Schools, hospitals, shopping destinations in nearby areas
- Landscape garden, children play area
More about Galaxy Homes
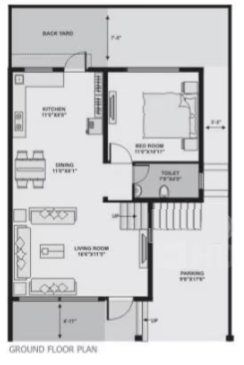
Galaxy Homes by Galaxy Group, located in Nava Naroda, Ahmedabad, offers 3 and 5 BHK villas. There are 97 units in total, and the villa sizes range from 1632 to 2943 sq. ft. The amenities include gymnasium, children’s play area, swimming pool, club house, rainwater harvesting, intercom, 24x7 security, jogging track, power backup, and landscaped gardens. Situated to the northeast of Ahmedabad, this suburban area hosts many multinational companies. It offers good road and rail connectivity to...View more
Project Specifications
- 3 BHK
- 5 BHK
- Gymnasium
- Swimming Pool
- Children's play area
- Club House
- Rain Water Harvesting
- Intercom
- 24 X 7 Security
- Jogging Track
- Power Backup
- Landscape Garden and Tree Planting
Galaxy Homes Gallery
About Galaxy Group

- Years of experience32
- Total Projects36
- Ongoing Projects3















































